Home › Unlabelled ›
Narrow House Plans With Garage / Narrow Lot House Plans And Designs At Builderhouseplans Com - This collection has a great collection of garage plans, including garage plans with storage, workshops, lofts and more.
Narrow House Plans With Garage / Narrow Lot House Plans And Designs At Builderhouseplans Com - This collection has a great collection of garage plans, including garage plans with storage, workshops, lofts and more.. Browse this collection of narrow lot house plans with attached garage (40 feet of frontage or less) to discover that you don't have to sacrifice convenience or storage, if the lot you are interested in is narrow, you can still have a house with an attached garage. With today's family cars, lawn equipment, and recreational vehicles growing larger than ever. Frank betz house plans offers 15 angled garage for sale, including beautiful homes like the belmeade manor and birchriver cottage. Get expert advice from the house plans industry leader. This collection has a great collection of garage plans, including garage plans with storage, workshops, lofts and more.
In our house plans garages are usually built or built into the main body of the building. With an angled garage, the garage is set at an angle to the main portion of the house. House plans with detached garages offer significant versatility when lot sizes can vary from narrow to large. By making the overall footprint more narrow, homeowners and builders are able to add garage stalls on a lot that would otherwise be too small to. Browse through the house plans by the most popular search filters here or you can also find more detailed search filters below.
Laguna 10m Wide Two Storey Home In Perth Novus Homes from www.novushomes.com.au In our house plans garages are usually built or built into the main body of the building. Sometimes, given the size or shape of the lot, it's not possible to have an attached garage on either side of the primary dwelling. Other house plans for narrow lots have traditional front garages, while some have no garage at all, which may suit you just fine. This collection has a great collection of garage plans, including garage plans with storage, workshops, lofts and more. What questions do you have? Narrow lot house plans, house plans with rear garage, 4 bedroom house plans, 15 ft wide house plans, 10119. Our narrow lot house plan collection contains our most popular narrow house plans with a maximum width of 50'. Browse this collection of narrow lot house plans with attached garage (40 feet of frontage or less) to discover that you don't have to sacrifice convenience or storage, if the lot you are interested in is narrow, you can still have a house with an attached garage.
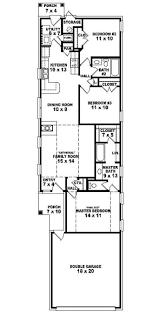
This description, or another in the set, may include a sample plot plan for locating your house on a building site.
These new and popular 4 car garage house plans are truly impressive! Narrow lot house plans with front garage with plan sub construction rather than a basement, the plan shows footings and details for a monolithic slab. Rear garage house plans and duplex house plans are great for alley road access or where city code restrict street access. Our narrow lot house plan collection contains our most popular narrow house plans with a maximum width of 50'. All 3 bedroom house plans 4 bedroom house plans acadian best selling conceptual house plans country courtyard entry garages craftsman duplex duplex/ multifamily editors picks european farmhouse plans french country garage plans house plans designed for corner lots house. Obviously, the preferred alternative would be a more spacious home with a different floor plan. Accommodate everything and everyone with these new 4 car garage house plans! By making the overall footprint more narrow, homeowners and builders are able to add garage stalls on a lot that would otherwise be too small to. There are 268 narrow house plans for sale on etsy, and they cost $48.74 on average. Other house plans for narrow lots have traditional front garages, while some have no garage at all, which may suit you just fine. The building lot may be narrow or the driveway may be located on. Northwest house plan for narrow corner lot. Narrow lot house plans, house plans with rear garage, 4 bedroom house plans, 15 ft wide house plans, 10119.
Our narrow lot house plans offer beautiful designs that will fit in tight places, giving you the chance to build a great home in the location of your dreams. Narrow lot house plans, house plans with rear garage, 4 bedroom house plans, 15 ft wide house plans, 10119. These narrow facade house ideas use vertical planting, beautiful home screening, window shutters a tall skinny house can become lost along the row, but that doesn't seem to be an issue with these a tiny plot in the middle of a city can even harbour an internal garage, tucked away into the small. These house plans for narrow lots are popular for urban lots and for high density suburban developments. There are 268 narrow house plans for sale on etsy, and they cost $48.74 on average.
House Plans For Narrow Lots from marvel-b1-cdn.bc0a.com House plans with detached garages offer significant versatility when lot sizes can vary from narrow to large. Narrow lot houses are quite rare. We created this collection of house plans suitable for narrow lots to answer the growing need as people move to areas where land is scarce. Get expert advice from the house plans industry leader. Meet the narrow house plans collection! A properly designed narrow lot house plan lives just like any other quality. Frank betz house plans offers 15 angled garage for sale, including beautiful homes like the belmeade manor and birchriver cottage. These house plans for narrow lots are popular for urban lots and for high density suburban developments.
This description, or another in the set, may include a sample plot plan for locating your house on a building site.
This narrow lot house plan has a great street presence. Meet the narrow house plans collection! This collection has a great collection of garage plans, including garage plans with storage, workshops, lofts and more. Northwest house plan for narrow corner lot. Check out our narrow house plans selection for the very best in unique or custom, handmade pieces from our home & living shops. To see more narrow lot house plans try our advanced floor plan search. Here you will find styles such as. Narrow lot house plans, house plans with rear garage, 4 bedroom house plans, 15 ft wide house plans, 10119. Consider rear entry garages for example. Narrow lot house plans (or house plans for narrow lots) may be more affordable to build due to the smaller lot. Find a house plan that fits your narrow lot here. If you're ready to start browsing our interior options and special features are great to help narrow your search, but checking off too many features may limit your search results. A house plan design with an angled garage is defined as just that:
Other house plans for narrow lots have traditional front garages, while some have no garage at all, which may suit you just fine. With an angled garage, the garage is set at an angle to the main portion of the house. Rear garage house plans and duplex house plans are great for alley road access or where city code restrict street access. Narrow lot house plans (or house plans for narrow lots) may be more affordable to build due to the smaller lot. Narrow lot house plans with front garage with plan sub construction rather than a basement, the plan shows footings and details for a monolithic slab.
Our Best Narrow Lot House Plans Maximum Width Of 40 Feet from drummondhouseplans.com Obviously, the preferred alternative would be a more spacious home with a different floor plan. House plans and more has the best selection of house designs available. This layout concept, which made a lot of sense a few generations ago, still does. Meet the narrow house plans collection! Browse this collection of narrow lot house plans with attached garage (40 feet of frontage or less) to discover that you don't have to sacrifice convenience or storage, if the lot you are interested in is narrow, you can still have a house with an attached garage. Other house plans for narrow lots have traditional front garages, while some have no garage at all, which may suit you just fine. Sometimes, given the size or shape of the lot, it's not possible to have an attached garage on either side of the primary dwelling. By making the overall footprint more narrow, homeowners and builders are able to add garage stalls on a lot that would otherwise be too small to.
Narrow lot house plans with front garage with plan sub construction rather than a basement, the plan shows footings and details for a monolithic slab.
The building lot may be narrow or the driveway may be located on. Meet the narrow house plans collection! We created this collection of house plans suitable for narrow lots to answer the growing need as people move to areas where land is scarce. Here you will find styles such as. These narrow facade house ideas use vertical planting, beautiful home screening, window shutters a tall skinny house can become lost along the row, but that doesn't seem to be an issue with these a tiny plot in the middle of a city can even harbour an internal garage, tucked away into the small. By making the overall footprint more narrow, homeowners and builders are able to add garage stalls on a lot that would otherwise be too small to. Rear garage house plans and duplex house plans are great for alley road access or where city code restrict street access. Square footage of narrow homes can vary depending on the number of stories. To see more narrow lot house plans try our advanced floor plan search. Narrow lot house plans (or house plans for narrow lots) may be more affordable to build due to the smaller lot. Browse through the house plans by the most popular search filters here or you can also find more detailed search filters below. Browse this collection of narrow lot house plans with attached garage (40 feet of frontage or less) to discover that you don't have to sacrifice convenience or storage, if the lot you are interested in is narrow, you can still have a house with an attached garage. There are 268 narrow house plans for sale on etsy, and they cost $48.74 on average.