1987 Chevy Fuse Box Diagram : 1987 Chevy Monte Carlo Fuse Box Diagram Wiring Diagram Rub Spark A Rub Spark A Atlanticsport It : I check the light and the switch.. I searched for days an have not been able to find anything if anyone knows of a site were i can get a diagram of my fuse box it will be greatly appreciated or if someone can email me a picture of their fuse box. Fuse panel diagram toyota corolla ae86, corolla sport, corolla levin and sprinter trueno (1983, 1984, 1985, 1986, 1987). Hello,my father and i have been digging into the problem and i figured id ask if any of you had a picture of the 1985 camaro fuse box diagram.i undestand that haynes or chiltons has it,but that money can be put some where else/. Then it must be the fuse, but i can't figure which fuse it is. In some of the international markets, it has become a household name.

2001, 2002, 2003, 2004, 2005, 2006). My glove box doesn't work. Ranger under dash fuse box diagram pickup wiring harness diagram ford f 15f15truck wiring diagrams service shop repair ewd mustang fuse box diagram headlight dimmer switch wiring diagram hp tecumseh engine diagram subaru legacy wiring diagram headphone wiring. I have found this little fuse diagram in my car (2013 f34 335) but obviously i am en idiot and can not find out which of all those small icons represents brake lights not sure what the diagram matrix is for the f30, but if you want to find out, pull the fuses that have the light icon that are in the trunk fusebox one at a time and see. If one or more electrical components begins to draw too much power, then the fuse breaks.

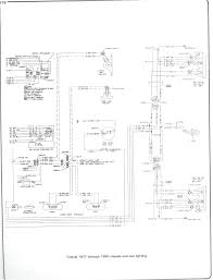
1987 Chevy Truck Fuse Block Diagrams Elevator Wiring Schematic Ezgobattery Sarange Warmi Fr
1987 Chevy Truck Fuse Block Diagrams Elevator Wiring Schematic Ezgobattery Sarange Warmi Fr from www.dieselplace.com
In some of the international markets, it has become a household name. Location of fuse boxes, fuse diagrams, assignment of the electrical fuses and relays in chevrolet vehicles. I am having trouble finding a diagram to my chevy. I check the light and the switch. Ranger under dash fuse box diagram pickup wiring harness diagram ford f 15f15truck wiring diagrams service shop repair ewd mustang fuse box diagram headlight dimmer switch wiring diagram hp tecumseh engine diagram subaru legacy wiring diagram headphone wiring. When this happens, the electrical current that flows. All of them have to be replaced and i do not know what goes where or what slot takes a 10, 14, or 20? The fuse box(es) in your chevy silverado contains dozens of fuses, with each controlling one or more components of your truck's overall electrical system.

Fuse panel diagram toyota corolla ae86, corolla sport, corolla levin and sprinter trueno (1983, 1984, 1985, 1986, 1987).

Stop lamps, windshield wiper, hazard lamp, 3rd brake light, headlamps, tail lamps, parking lamps, side marker lamps, instrument. This image shows the under dash fuse box layout for a 1987 to 1993 ford mustang. My glove box doesn't work. I searched for days an have not been able to find anything if anyone knows of a site were i can get a diagram of my fuse box it will be greatly appreciated or if someone can email me a picture of their fuse box. A fuse box diagram 1987 chevy silverado. 1987 chevrolet v10 fuse block wiring diagram. Honda accord fuse box diagram fuse box diagram pulling fuses is easy. This guide will let you know what fuse does what in your honda accord. 2001, 2002, 2003, 2004, 2005, 2006). There are no fuses in the box. Hello,my father and i have been digging into the problem and i figured id ask if any of you had a picture of the 1985 camaro fuse box diagram.i undestand that haynes or chiltons has it,but that money can be put some where else/. There was a post in the automotive forums recently asking about what fuses are used for different circuits. I am having trouble finding a diagram to my chevy.

My glove box doesn't work. Chevrolet or chevy is one of the favourite car brands in the market. When this happens, the electrical current that flows. Wifey spilled water on passenger seat, airbag light came on. Btsi fuse, starter relay, ignition switch, oxygen fuse, park lamp, parking light, hvac fuse, hazard lamp, rear defogger relay, heated mirror, rear wiper/washer, stop lamp, high mounted stop lamp, fog lamp relay, heated seat, horn relay, daytime running light relay.

Diagram Chevy Truck Fuse Box Diagram Full Version Hd Quality Box Diagram Eyediagramn Smartgioiosa It
Diagram Chevy Truck Fuse Box Diagram Full Version Hd Quality Box Diagram Eyediagramn Smartgioiosa It from lh5.googleusercontent.com
1997 mitsubishi 3000gt mini fuse box diagram 1997 mitsubishi 3000gt mini fuse box map fuse panel layout diagram parts: Power accessory, radio, signal lamp flasher, tail lamp, cigar lighter, courtesy lamp, seat belt buzzer, horn relay, ignition coil, hazard flasher, circuit breaker, fuse assembly, heater, windshield wiper, traffic hazard lamp. Then it must be the fuse, but i can't figure which fuse it is. There was a post in the automotive forums recently asking about what fuses are used for different circuits. Hello,my father and i have been digging into the problem and i figured id ask if any of you had a picture of the 1985 camaro fuse box diagram.i undestand that haynes or chiltons has it,but that money can be put some where else/. 1200 x 630 jpeg 136 кб. Location (pictures) and function of each fuse. Fuse panel layout diagram parts:

I searched for days an have not been able to find anything if anyone knows of a site were i can get a diagram of my fuse box it will be greatly appreciated or if someone can email me a picture of their fuse box.

I own a 1987 chevy cavalier z24 myself with a 2.8l v6. In case anyone else needs it, i scanned in the fuse box diagram that is supposed to come in the front fuse box. I have found this little fuse diagram in my car (2013 f34 335) but obviously i am en idiot and can not find out which of all those small icons represents brake lights not sure what the diagram matrix is for the f30, but if you want to find out, pull the fuses that have the light icon that are in the trunk fusebox one at a time and see. 1984 chevy silverado fuse box diagram truck panel forum in. Fuse panel layout diagram parts: Location of fuse boxes, fuse diagrams, assignment of the electrical fuses and relays in chevrolet vehicles. Assignment of the fuses (1999). If your windshield wipers, air conditioner, or similar electronic device stops functioning pontiac firebird fuse box diagram fuse box diagram if your pontiac firebird has an electrical problem, your fuse this article applies to the pontiac firebird and chevy camaro. Fuse box diagrams a blown fuse can be a pain to find without the proper diagram. Fuse box diagram (location and assignment of electrical fuses and relays) for chevrolet (chevy) avalanche (gmt800; Hello,my father and i have been digging into the problem and i figured id ask if any of you had a picture of the 1985 camaro fuse box diagram.i undestand that haynes or chiltons has it,but that money can be put some where else/. This image shows the under dash fuse box layout for a 1987 to 1993 ford mustang. In some of the international markets, it has become a household name.

Location of fuse boxes, fuse diagrams, assignment of the electrical fuses and relays in chevrolet vehicles. Fuse box diagram (location and assignment of electrical fuses and relays) for chevrolet (chevy) avalanche (gmt800; And do these all have to be hooked up for one of them o well this is a basic one for our trucks,im not sure if this is what you are looking for? In some of the international markets, it has become a household name. Hello,my father and i have been digging into the problem and i figured id ask if any of you had a picture of the 1985 camaro fuse box diagram.i undestand that haynes or chiltons has it,but that money can be put some where else/.

1987 Chevy Silverado Fuse Box Diagram Ferrari Dino Wiring Diagram Begeboy Wiring Diagram Source
1987 Chevy Silverado Fuse Box Diagram Ferrari Dino Wiring Diagram Begeboy Wiring Diagram Source from www.carfusebox.com
I searched for days an have not been able to find anything if anyone knows of a site were i can get a diagram of my fuse box it will be greatly appreciated or if someone can email me a picture of their fuse box. Were you able to find the fuse box diagrams? There was a post in the automotive forums recently asking about what fuses are used for different circuits. This guide will let you know what fuse does what in your honda accord. 1200 x 630 jpeg 136 кб. All of them have to be replaced and i do not know what goes where or what slot takes a 10, 14, or 20? I am having trouble finding a diagram to my chevy. Need help finding a diagram fora 89 dokota can't locate in any manuel any help would be great.

I check the light and the switch.

Fuse box diagram (location and assignment of electrical fuses and relays) for chevrolet (chevy) avalanche (gmt800; Hello,my father and i have been digging into the problem and i figured id ask if any of you had a picture of the 1985 camaro fuse box diagram.i undestand that haynes or chiltons has it,but that money can be put some where else/. There was a post in the automotive forums recently asking about what fuses are used for different circuits. The cover is missing along with the diagram. If your windshield wipers, air conditioner, or similar electronic device stops functioning pontiac firebird fuse box diagram fuse box diagram if your pontiac firebird has an electrical problem, your fuse this article applies to the pontiac firebird and chevy camaro. I have looked all over the internet for a diagram of the fuse box under the hood. Just be a fuse and the clock is on a separate circuit? 2001, 2002, 2003, 2004, 2005, 2006). Ranger under dash fuse box diagram pickup wiring harness diagram ford f 15f15truck wiring diagrams service shop repair ewd mustang fuse box diagram headlight dimmer switch wiring diagram hp tecumseh engine diagram subaru legacy wiring diagram headphone wiring. Fuse panel layout diagram parts: In case anyone else needs it, i scanned in the fuse box diagram that is supposed to come in the front fuse box. Fuse panel diagram toyota corolla ae86, corolla sport, corolla levin and sprinter trueno (1983, 1984, 1985, 1986, 1987). 1987 chevrolet v10 fuse block wiring diagram.

By